全国空降平台二维码在线_同城品茶联系电话号码_可约可空降二维码_全国24小时空降平台网站

11 12 13 14
产品目录

三块式焊接球阀

三块式焊接球阀

Time:2012-12-01
三块式焊接(锻钢)球阀
 



































产品特点
   1、本产品所有部件均为锻件。
   2、采用下装式阀杆,设置倒密封结构,力保填料处可靠密封及防止阀杆脱出。
   3、采用镶嵌式阀座。阀座背后设置O型圈,力保介质不外漏。




































主要零件材料












零件名称

材质

GB

ASTM

阀体、阀盖

WCB

A216-WCB

密封圈

PTFE

PTFE

球体

1Cr18Ni9Ti

SS 304

阀座、阀杆

2Cr13

A246-416

O形圈

PTFE

PTFE

双头螺栓

35CrMoA

A193-B7




 主要性能规范    


公称压力PN

16

32

Mpa

强度试验压力PT

24

48

Mpa

低压密封试验力

0.6

Mpa

高压密封试验力

17.6

35.2

Mpa

适用介质

水、油品、蒸汽

适用温度

-40150℃


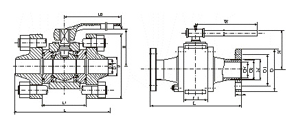
 主要连接尺寸 








公称
压力

公称
通径

主要尺寸

L

L1

D

D1

H

W

M

D2

b

Z-Φd

法兰

对焊

法兰

对焊

法兰

对焊

法兰

对焊

法兰

对焊

法兰

16.0

10

210

150

52

60

95

90

60

18

77

58

220

M24×2

18

20

3-18

15

230

170

62

70

95

100

60

23

85

62

220

M24×2

20

20

3-18

20

240

190

73

80

105

110

68

29

94

75

250

M33×2

28

20

3-18

25

260

205

77

95

105

115

68

36

100

80

250

M33×2

28

22

3-18

32

300

230

100

110

115

150

80

43

120

96

300

M42×2

38

24

4-18

40

 

260

110

120

165

170

115

49

150

111

400

M52×2

48

30

6-26

50

400

330

130

140

165

200

115

61

165

128

450

M64×3

58

32

6-26

65

490

360

140

150

200

225

145

80

180

180

500

M80×3

74

40

6-29

80

580

380

150

160

225

270

170

105

200

200

600

M100×3

94

50

6-33

100

620

430

178

188

260

320

195

118

245

245

800

M125×4

115

60

6-36

32.0

10

210

150

52

60

95

90

60

18

77

58

220

M24×2

18

20

3-18

15

230

170

62

70

105

100

68

23

85

62

220

M33×2

28

20

3-18

20

240

190

73

80

105

110

68

29

94

75

250

M33×2

28

20

3-18

25

260

205

77

95

115

115

80

36

100

80

250

M42×2

35

25

4-18

32

300

230

100

110

165

150

115

43

120

96

300

M52×2

41

30

4-22

40

350

260

110

120

165

170

115

49

150

111

400

M64×3

47

35

6-26

50

400

330

130

140

200

200

145

61

165

128

450

M80×3

70

40

6-29

65

490

360

140

150

225

225

170

80

180

180

500

M100×3

90

50

6-33

80

580

380

150

160

260

270

195

105

200

200

600

M125×4

,112

55

6-36

100

620

430

178

188

300

320

235

118

245

245

800

M155×4

135

65

8-36


双恒阀门集团有限公司

地址:上海市金山工业区金百路398号

邮编:201506

电话:021-67225888 021-67221399

传真:021-67276958

邮箱:zgshfm@163.com


Copyright 2010-2025 双恒阀门集团有限公司. All Rights Reserved 备案链接 沪ICP备18038463号
主站蜘蛛池模板: 沧州市| 长沙县| 瓮安县| 瓦房店市| 兴义市| 宁波市| 乌鲁木齐县| 滨海县| 大庆市| 隆德县| 田林县| 门头沟区| 白山市| 齐齐哈尔市| 滁州市| 社旗县| 广昌县| 定兴县| 肥乡县| 黔西| 虞城县| 潼南县| 容城县| 枞阳县| 博白县| 眉山市| 杂多县| 嵩明县| 诏安县| 赣州市| 阿尔山市| 通州区| 晴隆县| 庐江县| 聂荣县| 峨山| 阿鲁科尔沁旗| 海兴县| 瓦房店市| 乡城县| 瑞丽市|